当前位置: 首页 > 产品大全 > 弱电工程门禁系统安装调试及故障维护

弱电工程门禁系统安装调试及故障维护

弱电工程门禁系统安装调试及故障维护

弱电工程是现代建筑智能化的重要组成部分,而门禁系统作为其关键子系统,承担着人员出入管理和安全保障的核心功能。本文将系统性地阐述弱电工程中门禁系统的安装流程、调试步骤以及常见故障的维护方法,以帮助从业人员提高工程效率与系统可靠性。

## 一、门禁系统安装流程

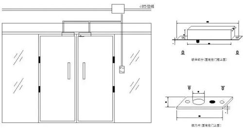
门禁系统的安装需遵循标准化流程,确保系统稳定运行。进行现场勘查与设计:根据建筑结构和使用需求,确定读卡器、电锁、控制器等设备的安装位置,并规划布线路径。设备安装:包括固定读卡器(如安装在入口处)、部署门禁控制器(通常置于弱电间)、安装电锁(如磁力锁或电插锁)以及辅助设备(如开门按钮、报警器等)。布线时,需使用屏蔽线缆以减少干扰,并遵循强弱电分离原则。电源与网络连接:为控制器提供稳定的电源,并通过网络线或总线将控制器与管理工作站连接。

## 二、系统调试步骤

安装完成后,需进行系统调试以确保功能正常。调试步骤包括:

1. **硬件检查**:确认所有设备电源接通、线缆连接牢固,无短路或断路现象。

2. **软件配置**:在管理软件中设置控制器参数,如通信协议、时间表、用户权限等。添加测试用户卡,并分配相应权限。

3. **功能测试**:模拟实际使用场景,测试读卡开门、按钮开门、报警触发等功能。检查记录是否准确上传至管理系统。

4. **联动测试**:若系统与其他子系统(如视频监控或消防系统)集成,需测试联动效果,例如门禁报警时自动触发摄像头录像。

## 三、常见故障及维护方法

门禁系统运行中可能遇到多种故障,及时维护至关重要。常见故障包括:

- **读卡器无响应**:可能原因有电源故障、线缆松动或读卡器损坏。维护时需检查电源输出,重新插拔连接线,或更换读卡器。

- **门锁无法动作**:常见于电锁电源不足或控制器输出异常。应测量锁具电压,确保符合要求,并检查控制器设置。

- **通信中断**:控制器与管理工作站失去连接,可能因网络问题或协议配置错误。需排查网络线路、IP地址设置,并重启设备。

- **误报警**:可能由传感器故障或环境干扰引起。维护时需校准传感器,并加强屏蔽措施。

定期维护是预防故障的关键,建议每季度检查设备状态、清理读卡器表面、更新软件补丁,并备份系统配置。通过规范的安装、调试与维护,弱电工程中的门禁系统能够长期稳定运行,有效提升建筑安全管理水平。


如若转载,请注明出处:http://www.run-man.com/product/217.html

更新时间:2026-05-20 10:50:57